28
ΠΏΛΗΣΗ
#ID 4112
Καβάλα Μονοκατοικία, Παγγαίου
€1,300,000 €3,714/τ.μ.
Στοιχεία Ακινήτου
Δείτε Περισσότερα
Περιγραφή
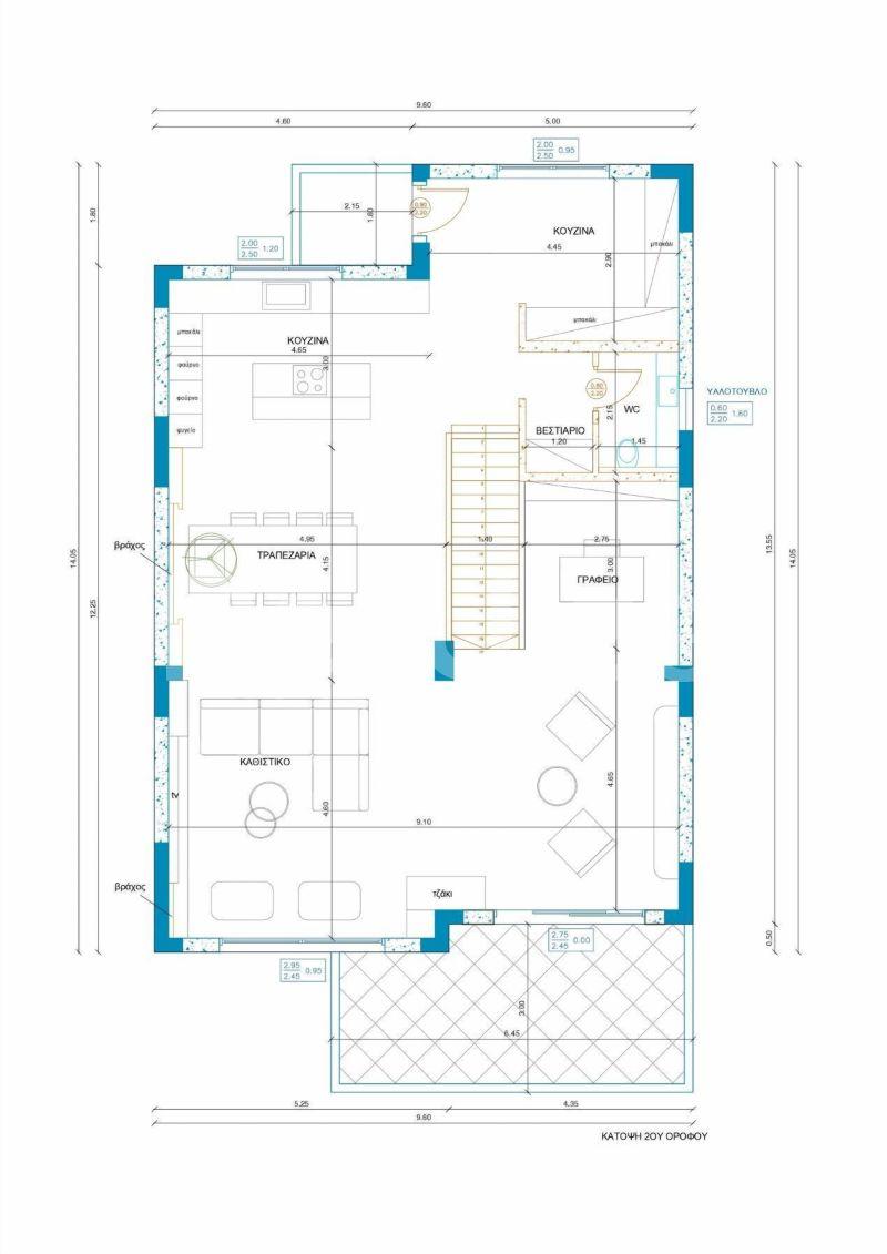
Πωλείται στη Νέα Ηρακλείτσα, αυτή η νεόδμητη πολυτελής μονοκατοικία 350 τ.μ., προσφέροντας έναν ιδανικό συνδυασμό άνεσης και στυλ. Με 5 ευρύχωρα υπνοδωμάτια και 4 μοντέρνα μπάνια, αυτό το σπίτι είναι ιδανικό για οικογένειες. Απολαύστε μια ιδιωτική εξωτερική πισίνα και εκπληκτική θέα στη θάλασσα που ενισχύει τη χαλάρωση. Σε απόσταση μόλις 10 λεπτών με τα πόδια από την παραλία, οι κάτοικοι επωφελούνται από την κοντινή απόσταση από όμορφες παραλίες και τοπικές παροχές, όπως καταστήματα και εστιατόρια. Το ακίνητο διαθέτει πόρτα ασφαλείας, κλιματισμό και ατομική θέρμανση, εξασφαλίζοντας άνεση και ασφάλεια. Με δύο θέσεις στάθμευσης και ποιοτικά υλικά σε όλους τους χώρους, επενδύστε σε έναν σύγχρονο τρόπο ζωής σε μια περιζήτητη περιοχή. Κωδικός: 4112.
Χαρακτηριστικά Ακινήτου
Ανεμπόδιστη θέα που δεν θα κλείσει
Γωνιακό
Πανοραμικό
Περιφραγμένο
Δορυφορική κεραία
Ενεργειακό τζάκι
Εντοιχισμένες ντουλάπες
Εντοιχισμένη Κουζίνα
Ηλιακός θερμοσίφωνας
Μπαρμπεκιου
Πόρτα ασφαλείας
Προεγκατάσταση Θέρμανσης
Σίτες
Τέντες
Υδρομασάζ-Τζακούζι
Δυνατότητα διαχωρισμού σε δύο ανεξάρτητες κατοικίες
Διαμπερές
Κλιματιστικό
Προσβάσιμο για άτομα με ειδικές ανάγκες
Εσωτερική Σκάλα
Μπαλκόνι
Φιλικό προς κατοικίδια
Διαθέτει Κήπο
Γιατί να κάνεις εγγραφή στη ReWize
Κάνε εγγραφή και ξεκλείδωσε
τη δύναμη του ReWize Panel
Η αγορά ακινήτων τώρα βρίσκεται στην οθόνη σου!
Απόκτησε πλήρη πρόσβαση στην πιο εξελιγμένη
πλατφόρμα ακινήτων στην Ελλάδα.
Αγαπημένα ακίνητα
Αποθηκευμένες ζητήσεις
Στατιστικά
Προσθήκη ακινήτου
Χώροι ανα επίπεδο
Ισόγειο
Σαλόνι 1
Υπνοδωμάτια 1
Μπάνια 0
WC 0
Ιδ. Μπάνιο 0
T.M. 100
Τι Υπάρχει Κοντά
Αποστάσεις με περπάτημα
Αποστάσεις με οδήγηση
Δείτε Περισσότερα
Περιοχή
A map is loading
MK
Milias Konstantinos+30 2311 24.15.60€1,300,000 €3,714/τ.μ.
Μήνυμα



























