7
ΠΏΛΗΣΗ
#ID 3246
Θεσσαλονίκη Διαμέρισμα, Θερμαϊκού
€140,000 €2,917/τ.μ.
Στοιχεία Ακινήτου
Δείτε Περισσότερα
Περιγραφή
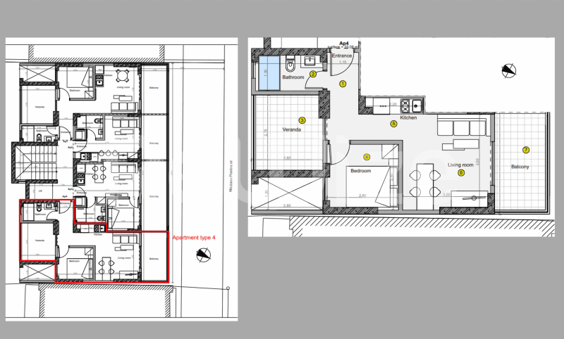
Στην Περαία πωλείται εξαίσιο διαμέρισμα 3ου ορόφου, καθαρού εμβαδού 48 τμ, 50 μέτρα από τη θάλασσα, πολυτελούς κατασκευής και υψηλής αισθητικής του 2025.
Αποτελείται από σαλοκουζίνα, 2 υπνοδωμάτια και ένα μπάνιο. Διαθέτει ενδοδαπέδια θέρμανση EKOSS 12V, που είναι ηλεκτρική θέρμανση τελευταίας τεχνολογίας για την καλύτερη εξοικονόμηση ενέργειας έως και 45%, κλιματισμό, πόρτα ασφαλείας, κουφώματα τριπλής υάλωσης και μεγάλο μπαλκόνι με όμορφη θέα, Επίσης διαθέτει σύστημα smart home, ένα σύστημα οικιακού αυτοματισμού που ελέγχει λειτουργίες στο κτίριο όπως φώτα, συστήματα ψυχαγωγίας, συσκευές, έλεγχο πρόσβασης και συναγερμούς. Έτος κατασκευής έχει οριστεί για το 2025, με κουφώματα αλουμινίου, δάπεδο από γρανίτη, πόρτα ασφαλείας και κλιματισμό. Βρίσκεται σε απόσταση αναπνοής από την παραλία και δίπλα σε όλες τις ανέσεις της Περαίας. Ιδανική επιλογή για εξοχική κατοικία ή και μια εξαιρετική επένδυση.
Κωδικός 3246
Χαρακτηριστικά Ακινήτου
Πόρτα ασφαλείας
Προεγκατάσταση συναγερμού
Σίτες
Υπηρεσία ασφαλείας
Ρετιρέ
Υπό κατασκευή
Πρόσοψη σε δρόμο
Κλιματιστικό
Προσβάσιμο για άτομα με ειδικές ανάγκες
Φιλικό προς κατοικίδια

Γιατί να κάνεις εγγραφή στη ReWize
Κάνε εγγραφή και ξεκλείδωσε
τη δύναμη του ReWize Panel
Η αγορά ακινήτων τώρα βρίσκεται στην οθόνη σου!
Απόκτησε πλήρη πρόσβαση στην πιο εξελιγμένη
πλατφόρμα ακινήτων στην Ελλάδα.
Αγαπημένα ακίνητα
Αποθηκευμένες ζητήσεις
Στατιστικά
Προσθήκη ακινήτου
Χώροι ανα επίπεδο
2ος Όροφος
Σαλόνι 1
Υπνοδωμάτια 1
Μπάνια 1
WC 0
Ιδ. Μπάνιο 0
T.M. 48
Τι Υπάρχει Κοντά
Αποστάσεις με περπάτημα
Αποστάσεις με οδήγηση
Δείτε Περισσότερα
Περιοχή
A map is loading
Παρόμοια Ακίνητα
RECONSTRUCT+30 2311 24.15.60€140,000 €2,917/τ.μ.
Μήνυμα






