5
ΠΏΛΗΣΗ
#ID 2776
Θεσσαλονίκη Διαμέρισμα, Θέρμης
€170,000 €2,698/τ.μ.
Στοιχεία Ακινήτου
Δείτε Περισσότερα
Περιγραφή
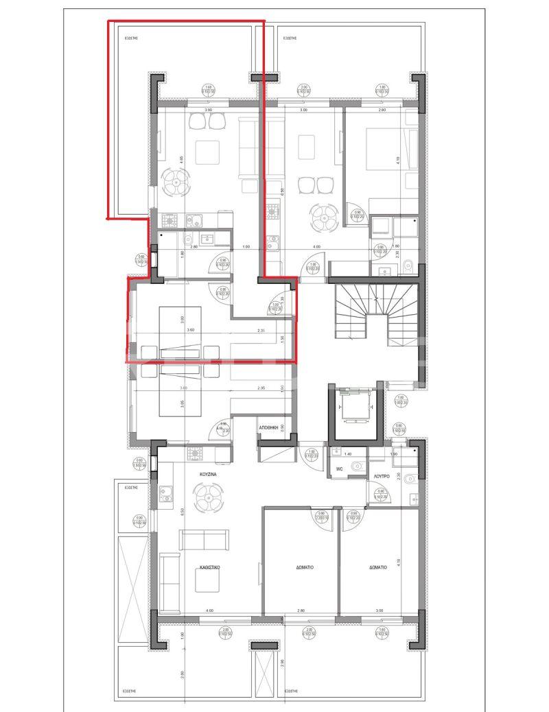
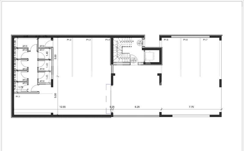
Στη Θέρμη πωλείται υπό κατασκευή, πολυτελής, μοντέρνα γκαρσονιέρα 2ου ορόφου 63τμ. έτος κατασκευής 2025. Αποτελείται από μια μεγάλη και φωτεινή σαλονοκουζίνα με μεγάλη μπαλκονόπορτα που οδηγεί απευθείας στην κεντρική βεράντα, ένα ευρύχωρο υπνοδωμάτιο με ντουλάπα, και ένα άνετο μπάνιο με πολυτελή είδη υγιεινής. Η θέρμανση του είναι ενδοδαπέδια, ατομική με αντλία θερμότητας. Διαθέτει πόρτα ασφαλείας, θερμομονωτικά κουφώματα με θερμοδιακοπή και ενεργειακά τζάμια, ηλιακό θερμοσίφωνα, ηλεκτρικά στόρια και a/c. Επίσης διαθέτει δορυφορική κεραία, ίντερνετ, σύστημα φόρτισης αυτοκινήτου, προεγκατάσταση συναγερμού, υπόγεια αποθήκη . καθώς και θέση στάθμευσης σε κλειστό πάρκινκ όπου κατεβαίνει το ασανσέρ και υπάρχει δυνατότητα προσωπικών επιλογών και παρεμβάσεων τόσο στα υλικά όσο και στην εσωτερική διαρρύθμιση. Κωδικός 2776.
Χαρακτηριστικά Ακινήτου
Εντοιχισμένες ντουλάπες
Ηλιακός θερμοσίφωνας
Πόρτα ασφαλείας
Προεγκατάσταση συναγερμού
Σίτες
Υπό κατασκευή
Πρόσοψη σε δρόμο
Κλιματιστικό
Προσβάσιμο για άτομα με ειδικές ανάγκες
Μπαλκόνι
Φιλικό προς κατοικίδια
Γιατί να κάνεις εγγραφή στη ReWize
Κάνε εγγραφή και ξεκλείδωσε
τη δύναμη του ReWize Panel
Η αγορά ακινήτων τώρα βρίσκεται στην οθόνη σου!
Απόκτησε πλήρη πρόσβαση στην πιο εξελιγμένη
πλατφόρμα ακινήτων στην Ελλάδα.
Αγαπημένα ακίνητα
Αποθηκευμένες ζητήσεις
Στατιστικά
Προσθήκη ακινήτου
Χώροι ανα επίπεδο
2ος Όροφος
Σαλόνι 1
Υπνοδωμάτια 1
Μπάνια 1
WC 0
Ιδ. Μπάνιο 0
T.M. 63
Τι Υπάρχει Κοντά
Αποστάσεις με περπάτημα
Αποστάσεις με οδήγηση
Δείτε Περισσότερα
Περιοχή
A map is loading
Παρόμοια Ακίνητα
RECONSTRUCT+30 2311 24.15.60€170,000 €2,698/τ.μ.
Μήνυμα




