5
ΠΏΛΗΣΗ
#ID 2769
Θεσσαλονίκη Διαμέρισμα, Θέρμης
€270,000 €2,755/τ.μ.
Στοιχεία Ακινήτου
Δείτε Περισσότερα
Περιγραφή
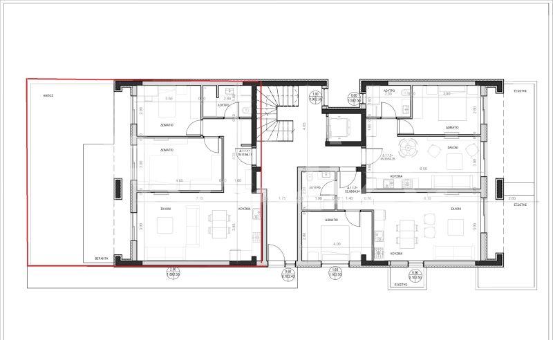
Στη Θέρμη πωλείται υπό κατασκευή, πολυτελές ισόγειο διαμέρισμα 98τμ. έτος κατασκευής 2025. Αποτελείται από μια μεγάλη και φωτεινή σαλονοκουζίνα με μεγάλη μπαλκονόπορτα που οδηγεί απευθείας στην κεντρική βεράντα και σε ατομικό κήπο με περίφραξη, αυτόματο πότισμα και φωτισμό, από δύο ευρύχωρα υπνοδωμάτια με ντουλάπες και μπαλκονόπορτες όπου επίσης οδηγούν στην βεράντα και στον κήπο και ένα άνετο μπάνιο με πολυτελή είδη υγιεινής. Η θέρμανση του είναι ενδοδαπέδια, ατομική με φυσικό αέριο. Διαθέτει πόρτα ασφαλείας, θερμομονωτικά κουφώματα μθερμοδιακοπή και ενεργειακά τζάμια, ηλ. θερμοσίφωνα, ηλεκτρικά στόρια και a/c. Επίσης διαθέτει δορυφορική κεραία, ίντερνετ, σύστημα φόρτισης ηλ. αυτοκινήτου, προεγκατάσταση συναγερμού, υπόγεια αποθήκη καθώς και υπόγειο κλειστό πάρκινκ όπου κατεβαίνει το ασανσέρ. Βρίσκετε σε ήσυχη γειτονιά κοντά στο κέντρο της Θέρμης, δίπλα σε σχολεία, εμπορικά καταστήματα και υπηρεσίες. Κωδικός ακινήτου 2769.
Χαρακτηριστικά Ακινήτου
Πόρτα ασφαλείας
Προεγκατάσταση συναγερμού
Σίτες
Υπό κατασκευή
Πρόσοψη σε δρόμο
Κλιματιστικό
Προσβάσιμο για άτομα με ειδικές ανάγκες
Φιλικό προς κατοικίδια
Διαθέτει Κήπο
Γιατί να κάνεις εγγραφή στη ReWize
Κάνε εγγραφή και ξεκλείδωσε
τη δύναμη του ReWize Panel
Η αγορά ακινήτων τώρα βρίσκεται στην οθόνη σου!
Απόκτησε πλήρη πρόσβαση στην πιο εξελιγμένη
πλατφόρμα ακινήτων στην Ελλάδα.
Αγαπημένα ακίνητα
Αποθηκευμένες ζητήσεις
Στατιστικά
Προσθήκη ακινήτου
Χώροι ανα επίπεδο
Ισόγειο
Σαλόνι 1
Υπνοδωμάτια 2
Μπάνια 1
WC 0
Ιδ. Μπάνιο 0
T.M. 98
Τι Υπάρχει Κοντά
Αποστάσεις με περπάτημα
Αποστάσεις με οδήγηση
Δείτε Περισσότερα
Περιοχή
A map is loading
Παρόμοια Ακίνητα

€270,000 €2,755/τ.μ.
Μήνυμα