7
ΠΏΛΗΣΗ
#ID 2322
Θεσσαλονίκη Διαμέρισμα, Θέρμης
€257,000 €2,495/τ.μ.
Στοιχεία Ακινήτου
Δείτε Περισσότερα
Περιγραφή
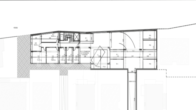
Στη Θέρμη πωλείται υπό κατασκευή, γωνιακό, πολυτελές ισόγειο διαμέρισμα 103τμ. έτος κατασκευής 2024.
Αποτελείται από μια μεγάλη και φωτεινή σαλονοκουζίνα με τζάκι, με μεγάλη μπαλκονόπορτα που οδηγεί απευθείας στην κεντρική βεράντα και σε ατομικό κήπο με περίφραξη, αυτόματο πότισμα και φωτισμό, από δύο ευρύχωρα υπνοδωμάτια με ντουλάπες και μπαλκονόπορτες όπου επίσης οδηγούν στην βεράντα και στον κήπο και ένα άνετο μπάνιο με πολυτελή είδη υγιεινής. Η θέρμανση του είναι ενδοδαπέδια, ατομική με φυσικό αέριο. Διαθέτει πόρτα ασφαλείας, θερμομονωτικά κουφώματα μθερμοδιακοπή και ενεργειακά τζάμια, ηλ. θερμοσίφωνα, ηλεκτρικά στόρια και a/c. Επίσης διαθέτει δορυφορική κεραία, ίντερνετ, σύστημα φόρτισης ηλ. αυτοκινήτου, προεγκατάσταση συναγερμού, υπόγεια αποθήκη 22τμ. καθώς και υπόγειο κλειστό πάρκινκ όπου κατεβαίνει το ασανσέρ. Το έργο θα παραδοθεί αρχές του 2026 και υπάρχει δυνατότητα προσωπικών επιλογών και παρεμβάσεων τόσο στα υλικά όσο και στην εσωτερική διαρρύθμιση. Κωδικός 2308.
Χαρακτηριστικά Ακινήτου
Ανεμπόδιστη θέα που δεν θα κλείσει
Δορυφορική κεραία
Εντοιχισμένες ντουλάπες
Ηλιακός θερμοσίφωνας
Πόρτα ασφαλείας
Προεγκατάσταση συναγερμού
Σίτες
Διαμπερές
Υπό κατασκευή
Πρόσοψη σε δρόμο
Κλιματιστικό
Τζάκι
Προσβάσιμο για άτομα με ειδικές ανάγκες
Μπαλκόνι
Εγκατάσταση Ηλεκτρικής Φόρτισης
Φιλικό προς κατοικίδια
Διαθέτει Κήπο
Γιατί να κάνεις εγγραφή στη ReWize
Κάνε εγγραφή και ξεκλείδωσε
τη δύναμη του ReWize Panel
Η αγορά ακινήτων τώρα βρίσκεται στην οθόνη σου!
Απόκτησε πλήρη πρόσβαση στην πιο εξελιγμένη
πλατφόρμα ακινήτων στην Ελλάδα.
Αγαπημένα ακίνητα
Αποθηκευμένες ζητήσεις
Στατιστικά
Προσθήκη ακινήτου
Χώροι ανα επίπεδο
Ισόγειο
Σαλόνι 1
Υπνοδωμάτια 2
Μπάνια 1
WC 0
Ιδ. Μπάνιο 0
T.M. 103
Τι Υπάρχει Κοντά
Αποστάσεις με περπάτημα
Αποστάσεις με οδήγηση
Δείτε Περισσότερα
Περιοχή
A map is loading
Παρόμοια Ακίνητα
RECONSTRUCT+30 2311 24.15.60€257,000 €2,495/τ.μ.
Μήνυμα






